Medan, Metrokreasi.com – Guna mendukung kelancaran kegiatan Car Free Night yang akan digelar pada 28 Juni 2025, Pemko Medan melalui Dinas Perhubungan (Dishub) melakukan manajemen rekayasa lalu lintas di jalanan Kota Medan, Selain penutupan sejumlah ruas jalan, Dishub Kota Medan juga melakukan pengalihan arus lalu lintas.
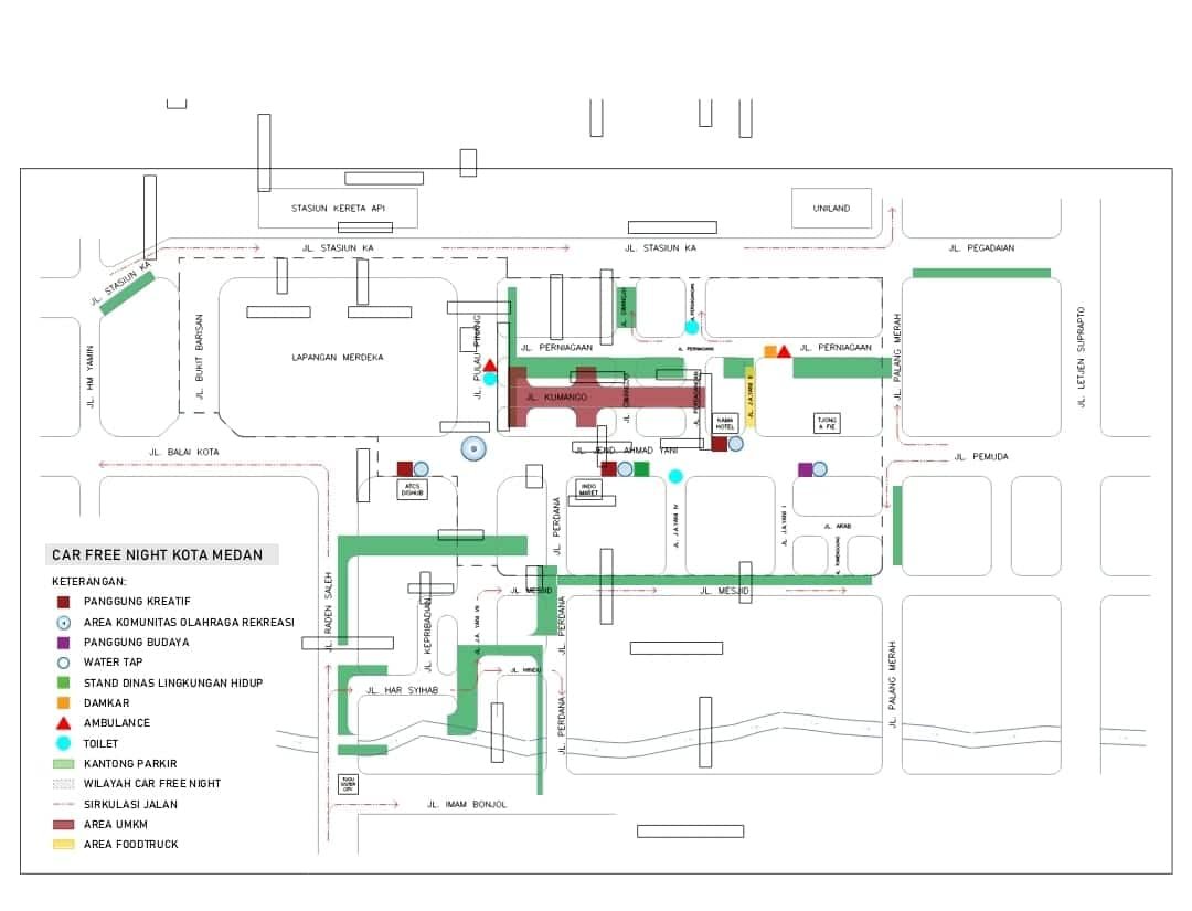
Plt Kadis Perhubungan, Suriono ketika dikonfirmasi, Jumat (27/6/25) menjelaskan pusat kegiatan Car Free Night berada di jalan Jenderal Ahmad Yani, Kesawan. Selain itu Car Free Night juga berlangsung di seputaran kawasan lapangan Merdeka Medan, yakni di jalan Bukit Barisan, Jalan Stasiun dan Jalan Pulau Penang.
“Untuk mendukung kegiatan ini Dishub Kota Medan bekerjasama dengan Polrestabes Medan akan melakukan manajemen rekayasa lalulintas, diantaranya penutupan sejumlah ruas sepert jalan Jendral Ahmad Yani persimpangan jalan Palang Merah, sepanjang jalan Masjid dan jalan Perniagaan. Kemudian penutupan juga dilakukan diseputaran lapangan merdeka jalan Stasiun, jalan Bukit Barisan dan jalan Pulau Penang”, jelas Suriono.
Suriono pun menghimbau kepada masyarakat yang akan melintas kawasan tersebut untuk mengambil jalan alternatif. Nantinya akan ada juga petugas Dishub yang akan mengarahkan di jalan yang akan ditutup tersebut.
“Bagi masyarakat pengguna kereta api masih diperkenankan untuk melintas jalan di depan stasiun kereta api atau jalan layang overpass. Sehingga penutupan jalan tidak menganggu aktifitas di stasiun kereta api “, ujar Suriono.
Ditambahkan Suriono, mekanisme rekayasa lalulintas dengan penutupan ruas jalan akan dimulai pukul 17:00 WIB sampai pukul 23:59 Wib. “Kami berharap masyarakat dapat mengetahui rekayasa lalulintas tersebut dan bagi pengendara agar dapat tertib dalam mengikuti arahan yang ada.
Suriono juga meminta maaf kepada masyarakat terkait penutupan atau rekayasa Jalan yang terjadi guna mensukseskan acara Car Free Night tersebut.
“Nanti petugas akan disebar di setiap simpang untuk membantu pengendara,” tutupnya.
Reporter : Syaipul Siregar


















